Yksilöllinen koti Sotkamojärven rannalle
Talo on yksilöllinen, yksitasoinen omakotitalo, joka rakennettiin Sotkamojärven
rannalle 2022 - 2023.
Tontilla on rakennusoikeutta ja varaukset autotallille ja rantasaunalle.
Kohteessa on maalämmitys.
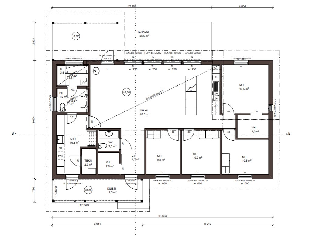
Huoneistoala 134 m2
Kerrosala 152,5 m2

Pohjakuva

Julkisivu
Asemakuva
Talopaketin pystytys, 30. 8. 2022
Käydäänpä kurkkaamassa, mitä pystytyspäivänä tapahtui kauniin Sotkamojärven rannalla. Paikalla oli asiatuntevat ammattilaiset ja kohtalaisen paljon uteliasta yleisöä. Ja aurinkokin paistoi lämpimäsi!
Unelmailma siis oman kodin pystytykselle!? No, sanotaanko, että lämpöä oli vähintäänkin riittävästi, varsinkin asentajille!
Homma hoituikin rivakasti päivässä osaavien ja reippaiden pystyttäjien toimesta. Tontille tuli tällä kertaa elementit + ristikot ilman ulkoverhouksia ja ikkunoita. Siitäpä omatoimirakentaja ja rakennuttaja Miikan oli hyvä jatkaa projektia hartiapankkiperiaatteella!

Ensimmäinen elementti - olohuoneen pitkä seinä.

Elementit kohdilleen ja kiinni.

Ensimmäinen ristikko paikoilleen.

Kattoristikoiden asennus sujui nopeasti.

Päätykolmioiden nosto ja kiinnitys.

Illemmalla pystytys oli lähes valmis!
Julkisivutöistä sisärakentamiseen syyskuussa 2022
Talopaketin pystytyspäivästä oli jo pikku tovi vierähtänyt ja Essin ja Miikan raksalla oli ahkeroitu! Julkisivu oli jo viimeistelyä vaille valmis ja vesikattokin jo tip top -kunnossa lumiesteitä myöten, ainoastaan sadevesijärjestelmä puuttui. Julkisivuvalotkin ovat jo asennettu. Kelpasi nyt tulla vettä, lunta ja pimeyttä!
Rakentamisen painopiste olikin siirtynyt jo sisälle. Tässä vaiheessa oli ilmanvaihtokanavat eristetty ja yläpohjakin jo lämmitysvalmis. Väliseinärunkojen asennus oli myös alkanut. Tässä kohteessa lattia valettiin jo kesällä ennen talopaketin tuloa, kun säätkin olivat vielä suotuisat.
Siistiä sisätyötä siis - vai onko?! Tämänkin rakennuksen viihtyisyydestä ja turvallisuudesta oli huolehdittu hyvin muistamalla ja jaksamalla säännölliset siivousrutiinit, silloin työmaallekin oli vielä mukavampaa tulla taas uudestaan. Mielenkiintoisia vaiheita siis riitti sisätilojen rakentamisessa.

Katto ja ulkoverhous pääosin asennettu.

Syksyinen rantanäkymä Sotkamojärvelle.

Ikkunat asennettu ja yläpohja eristetty sekä koolattu.

Väliseinä, LVI- ja sähkötyöt etenevät.
Sisärakentaminen etenee - marraskuu 2022
Vuosi 2022 oli jo kääntynyt reilusti marraskuulle, kun palasimme taas Essin ja Miikan rakennukselle Sotkamoon. Sisätyöt olivat hyvässä vauhdissa ja paljon näkyvää oli taas syntynyt! Väliseinät olivat jo pääosin pystyssä ja levytyskin hyvällä mallilla. Talon ulkopuolen viimeistelytyöt oli saatu myöskin lähes kokonaan päätökseen. Väliseinien sisälle jäävät LVIS-asennukset olivat suurelta osin jo asennettu. Tästä jo hieman pienemmälläkin mielikuvituksella pystyi kuvittelemaan, miltä rakennus näyttäisi valmiina ihastuttavana kotina!
Sitä ennen riitti toki vielä paljon, paljon tekemistä. Myös piiloon jäävät asennukset, rakenteet ja levytystyö on syytä tehdä huolella kuten tälläkin rakennuksella; se helpottaa pintatöiden tekemistä sekä näkyy ja tuntuu aina myös lopputuloksen laadussa.

Ulkopuolen viimeistelytyöt lähes valmiit.

Väliseinärunkojen pystytys.

Huonejärjestys hahmottuu.

Kalustetukien, sähkövetojen sekä hanakulmarasioiden asennusta.
Marraskuun lopulla päästiin tasoitustöihin
Kenenpä huone se tästä tulee?? Tämä kysymys kuullaan varmasti usein, kun rakennuksella käy vieraita! Eikä Sotkamossa Essin ja Miikan raksallakaan enää marraskuun lopulla varmasti kellään ollut epäilystäkään siitä, etteikö uusi upea koti olisi piankin valmistumassa uusille asukkailleen!
Sisäseinien ankaraa tasoitussavottaa ja pohjamaalausta riitti, ja siitäpä ne seinäpinnat huone huoneelta sileni ja valkaistu ja iso askel otettiin kohti valmista. Myös sisäkaton laittoon päästiin. Kaksissa miehin homma sujuikin joutuisasti, varsinkin kun asennettavana oli mittatarkkaa, tasalaatuista mdf-paneelia.
Kun työvaiheet on tehty huolellisesti valmiiksi, on työntäyteisten iltojen ja viikonloppujen jälkeen ilo katsella puhtaan valkeita ja suoria seinä- ja kattopintoja, ruskeiden ruuvinkantaisten kipsilevypintojen sijaan ja tuumata hetki jatkotoimenpiteitä.

Seinien tasoitustyöt tehtiin huolella.

Pohjamaalaus valkaisi sisätilat.

Tähän tulee sauna puolikorkealla lasiseinällä.

Katto paneloitiin mdf-paneelilla.

Pintamaalausta, listoitusta ja lattiaa vailla.
Alkuvuosi 2023 tehtiin pintatöitä
Niin saapui talven lumet ja viimat Sotkamojärvenkin rannalle. Joulu ja vuodenvaihde tulivat ja menivät, mutta Essin ja Miikan raksalla sisähommat sen kun jatkuivat pintamaalauksen, listoituksen ja katon paneloinnin merkeissä. Myös maalämpöpumppu saatiin kytkettyä ja päästiin nauttimaan tasaisen mukavasta lattialämmityksestä!
Ja upeaa jälkeä oli taas syntynyt! Hyvin kyllä myös jo näkikin tehdä, hyvässä sisävalaistuksessa.
Sisustussuunnittelu oli Kuopion Uuni ja Kaakelin käsialaa. Kokonaisuus on hillitty, johon väriä ja ilmettä tuovat harkitut tehostepinnat, mustat yksityiskohdat ja lämminsävyiset puupinnat.
Taitettu valkoinen on saanut kaverikseen murretun vihreän ja vaalean ruskean ja harmaan sävyjä. Mutta eipä sääntöä ilman poikkeusta - löytyypä yhdestä lastenhuoneesta myös pikantin punaista vuoristomaisemaakin!
Myös vesieristämään ja laatoittamaankin päästiin vihdoin, kun mittaukset osoittivat lattiabetonin riittävän kuivaksi. Saunaan tulisi tyylikäs puolikorkea lasiseinä sekä vastakkaiset lauteet. Vielä puuttuivat väliovet, kuivien tilojen lattiat, kalusteet ja joitain viimeistelytöitä.

Maalämpöpumppu saatiin kytkettyä.

Sisätyöt sujuivat lämpimissä tiloissa.

Pintamaalaukset alkavat olla kohta tehty.

Pientä irrottelua lastenhuoneeseen!

Sirkkeli soi ja siistejä jiirejä syntyy.

Ja ei kun paikoilleen!

Isäntä itse listoittamassa.

Tasapaksut siistit saumat varmistetaan narun avulla.

Huolella tehden laatua ja katseen kestävää jälkeä.

Pesuhuoneen ja saunan laatoitustyöt etenevät ja fiilikset ovat kohdillaan!
Valmistuminen lähestyy helmikuun loppupuolella 2023
Sotkamojärven rannalle valmistuu kohta uusi upea Omatalo! Muuttopäivän lähestyessä pölyinen raksa-aika alkaakin olla kohta taakse jäänyttä elämää. Essin ja Miikan koti on ehtinyt viimeistelyvaiheeseen ja sisällä näyttää jo lähes valmiilta, toisin sanoen erittäin hienolta!
Suoralinjaisen keittiön valkoiset ovet ovat vielä suojamuoveissaan. Saarekkeessa on pöytätason alapuolelle upotettu huomaamaton liesituuletin. Korkkivinyylilattia tuo lämpimän kodikasta tunnelmaa oleskelutiloihin.
Sormipaneeleilla ja puukuoseilla on saatu lämmintä, pehmeää luonnollisuutta myös muihin tiloihin. Harkitut murretut seinien sävyt ovat harmoniassa laattojen ja lattioiden sävymaailman kanssa. Saunaan tulee puolilasiseinä oven molemmin puolin. Kontrastia ja terävyyttä sisustukseen on saatu harkitulla mustan käytöllä.
Tyylikäs kokonaisuus, vai mitä?!

Pintatyöt alkavat olla pikku hiljaa valmiit.

Uuteen kotiin tulee harmonisen lämmin yleisvaikutelma.

Keittiökalusteiden runkojen asennus.

Kevyttakka luo kodikasta tunnelmaa.

Upeasta saunasta puuttuvat enää lasiseinät ja ovi.

Tyylikäs kokonaisuus tulee!

Selkeä I-keittiö saarekkeella. Valkeissa ovissa vielä suojamuovit paikoillaan.

Tuulikaapin yhteydessä on liukuovien takana tilava vaatehuone.

Kodinhoitohuonekin on kohta valmis.
Uuden kodin esittely maaliskuussa 2023
Uudessa kodissa pidettiin esittely lauantaina 4.3.
klo 12 - 15. Paikalla oli Kainuun ja Pohjois-Karjalan Omatalomyyjä Markku Sormusen lisäksi muutama tehtaan edustaja Omatalolta, sekä mukavan kokoinen joukko kiinnostuneita esittelyvieraita.
Kyllä kohdetta kelpasikin esitellä, upea kokonaisuus Sotkamojärven rannalle oli rakennettu ja erittäin hyvällä maulla tyylikkääksi sisustettu. Ja se työn jälki oli viimeisen päälle priimaa!

Tässä vielä lyhyt luonnehdinta ja kertaus kohteesta:
Talon huoneistoala on 136 m2. Neljän makuuhuoneen kodissa on upean avara olohuone-keittiö, jossa on korotettu sisäkatto. Oleskelutilojen suuret ikkunat tuovat runsaasti luonnonvaloa ja hyvät näkymät Sotkamojärvelle. Toimivat tilat sopivat hyvin myös suuremmankin perheen tarpeisiin! Sisustussuunnittelusta vastaa Kuopion Uuni ja Kaakeli Oy. Lämmitysmuotona on maalämpö.
Tähän taloesittelyyn kulminoitui seuraamamme Essin ja Miikan taloprojektin vaiheet. Seuraavaksi olikin käsillä yksi heidän elämänsä ikimuistoisimmista hetkistä - uuteen omaan kotiin muutto, joka esittelypäivänä näytti tällaiselta:

Olohuoneen lasiseinästä on upeat näkymät Sotkamojärvelle.

Tyylikkään eleettömässä keittiössä on värit ja muodot sopusoinnussa sekä toimivuus mietitty!

Liesituuletin on sijoitettu liesitason alapuolelle huomaamattomasti.

Valoisaan ja kodikkaaseen olohuone/keittiöön tuo korotettu sisäkatto lisää avaruuden tuntua.

Murretut tumman vihreät tehosteseinät tuovat yksilöllistä lämmintä tunnelmaa ja kontrastia.

Kodinhoitohuoneessa jatkuu mustan ja lämpimän vaaleiden pintojen harmonia.

Kodinhoitohuoneessa riittää toimivuutta ja tilaa.

Pyykinkuivaussyvennys.

Mustan käyttö tuo mukavasti särmää ja kontrastia sisustukseen!

Näkymä kylppärin kautta saunaan.

Yksilöllinen sauna on kuin taideteos.

Valittu värimaailma toimii upeasti!

Vaalea sormipaneeli tuo lämpöä ja ilmettä. Vaatehuoneen peiliovet lisäävät reilusti tilantuntua.

Iloa ja inspiraatiota leikkeihin!

Hyvässä valossa onnistuvat läksyt tai etätyöt.
Jo toista vuotta mukavaa asumista takana kesäkuussa 2024
Sotkamojärven rannalla on viihdytty ensimmäinen vuosi hyvin. Taloon on rakennettu terassit ja pihakin on saatu jo nurmetettua sekä istutusryhmiä rakennettua. On ollut todella mukava asia,
kun on ollut aikaisempaa enemmän
tilaa niin talossa kuin pihassa. Varsinkin lasten (nyt 3- ja 6-vuotiaat) kanssa
arjen pyörittäminen on ollut huomattavasti helpompaa.
Talossa on vaivaton maalämpö mukavalla vesikiertoisella lattialämmityksellä. Ensimmäisen talven kovilla pakkasilla lämmitettiin jonkin verran myös olohuoneen pientä takkakamiinaa, joka osoittautuikin yllättävän hyväksi lisälämmönlähteeksi.
Tontille tulee erillinen autosuojarakennus. Rannassa on oma laituri veneineen; sinne on suunnitteilla lisäksi oma rantasauna!

Näkymä takapihalta.

Etupihalta järvelle päin.

Takaterassilla on upeat järvimaisemat,
rantasaunakin on suunnitteilla!

Yhtenäinen keittiö/olohuone on valoisa avara ja toimiva!

Näkymä keittiöstä olohuoneeseen.
Värivalinnat ovat olleet onnistuneita!
