Yksilöllinen 1 1/2-kerroksinen koti Kajaaniin
Asiakkaiden toiveiden mukaisen kodin rakentaminen aloitettiin Kajaanin Jormuassa syksyllä 2025.
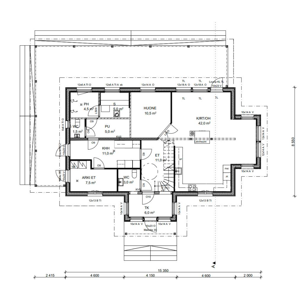
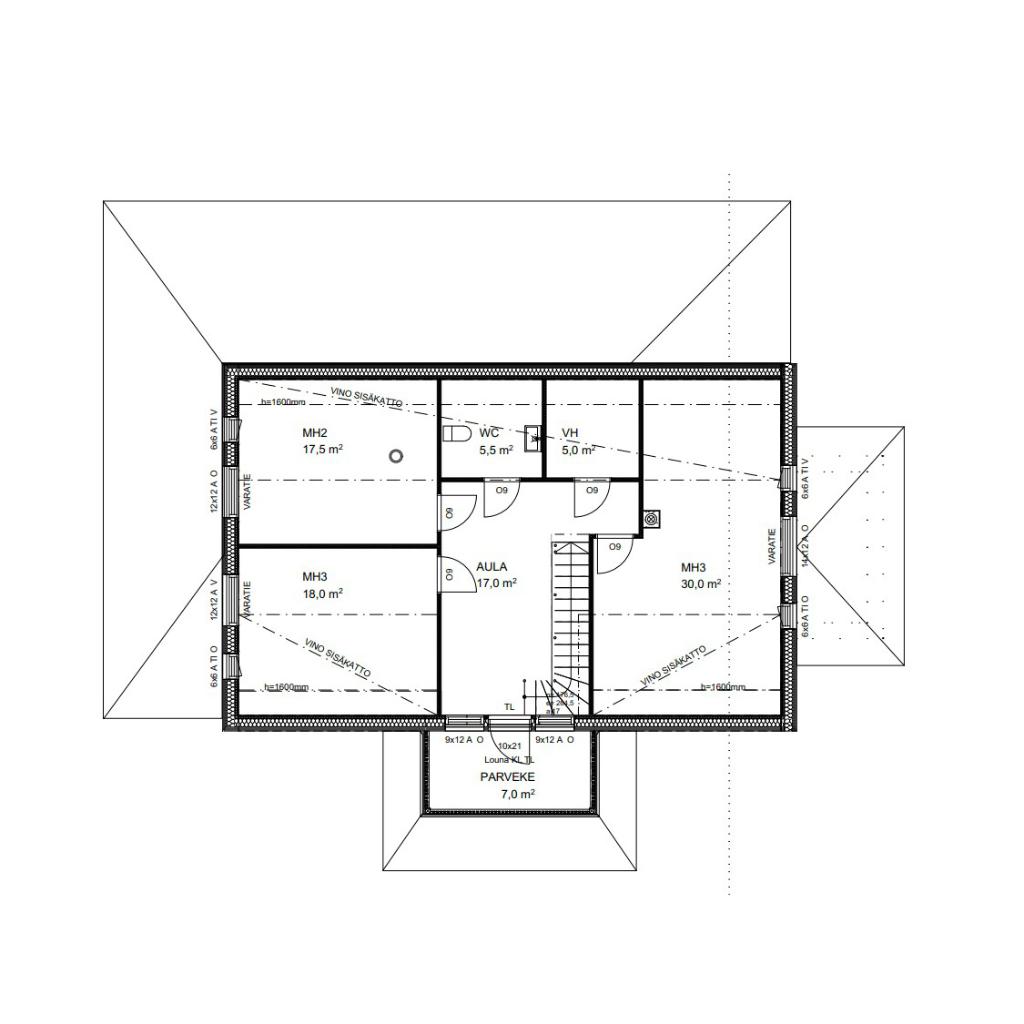
Talossa on neljä makuuhuonetta.
Huoneistoala 194,5 m2
Kerrosala 245 m2
Suunnittelu
Julkisivut
Suunnittelu
Alakerta
Suunnittelu
Yläkerta
Elementtien valmistus
Elementtien valmistus
Yläkerran päädyt
Elementtien valmistus
Yläkerran pääty
Elementtien valmistus
Pääsisäänkäyntikuistin ikkuna
Pystytys ja ulkoverhouksen viimeistely
Pystytys ja ulkoverhous
Talo on pystytetty ja telineitä rakennetaan työmaalla tehtäviä julkisivuasennuksia ja viimeistelytöitä varten.
Pystytys ja ulkoverhous
Pääsisäänkäynnin puolelta. Katossa alushuopa jo asennettuna.